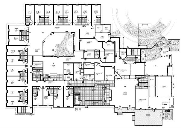
Anglefire
Assisted Living
Kansas City Kansas, KS

76 units

Wood framing

Design