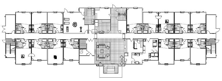
Candlewood
Suites
East Point, GA

80 unit suites hotel

Wood construction

Design